L’intervento, che prevede l’unione di due appartamenti sovrapposti, ha l’intento di dare forma a due zone di vita ben distinte - giorno e notte - attraverso la messa in scena di prospettive, tagli e colori pescati dalle correnti moderne che scandiscono i momenti di vita nella sua quotidianità.
Gli interventi più invasivi si concentrano al piano primo, nella volontà di riconfigurare la zona giorno facendole guadagnare l’intera superficie al piano.
Elemento centrale del progetto è la scala, che viene riconfigurata per essere parte integrante dell’appartamento, consentendo il primo accesso in corrispondenza del pianerottolo per poi aprirsi sullo spazio dell’abitazione, in un gioco di tonalità chiare e scure e di illuminazione naturale ed artificiale.
Come per il nastro di colore presente sull'involucro della scala, anche sul muro di spina si è deciso di lavorare con la tinta unita sul tono scuro; momenti di interesse si verificano in corrispondenza dei passaggi, dove le imbotti svasate direzionano e accompagnano dentro e fuori dall’open living.



piano primo
piano primo



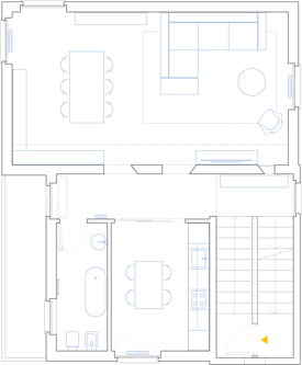
piano secondo
piano secondo






© 2020 FbR Architects all rights reserved