L'estetica nordica dello stile scandinavo ha conquistato il gusto di molti negli ultimi decenni, diventando una tendenza amata e apprezzata per l'arredamento domestico. Nato come risposta al desiderio di semplificazione e alla ricerca di un'atmosfera serena dopo gli eccessi degli anni Ottanta e Novanta, lo stile nordico celebra la bellezza dell'essenziale. Fondato su principi di design pulito e minimale, lo stile scandinavo enfatizza la bellezza delle forme e dei materiali naturali, ponendo un'attenzione particolare sulla funzionalità degli spazi. Il legno, con la sua calda tonalità e la sua texture naturale, è un elemento chiave in questo stile, mentre il bianco, utilizzato non solo alle pareti ma anche negli arredi, crea un senso di luminosità e spazialità. Le palette cromatiche dello stile scandinavo sono caratterizzate da tonalità morbide e luminose, capaci di riflettere la luce naturale che filtra dalle finestre, dando vita a un'atmosfera eterea e sospesa.
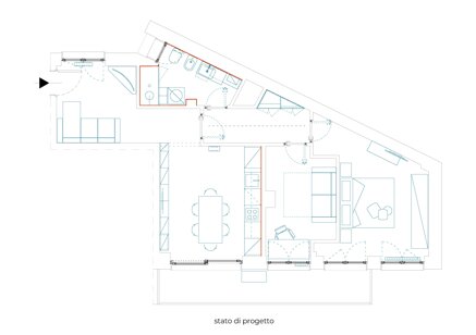
Questo approccio si manifesta in modo tangibile nel progetto ristrutturazione di questo appartamento di 70 metri quadri, dove i nuovi spazi prendono vita attraverso volumi colorati e differenti, ma sempre mantenendo una coerenza stilistica che esalta il minimalismo nordico.
L'interazione tra il candore dei colori neutri e il potere della luce naturale crea un ambiente che trasuda serenità e armonia, invitando alla contemplazione e al relax.
Le pareti, dipinte di bianco, fungono da tela per l'espressione di una palette cromatica soft, dove tocchi di colore si fondono armoniosamente con la sobrietà degli arredi.



L'ingresso rivela subito l'anima del progetto, con una palette cromatica che celebra il bianco come protagonista indiscusso. Qui, una sala tv accoglie gli ospiti con un contrasto elegante, dove un volume colorato si distingue armoniosamente tra le linee pulite delle pareti circostanti. La cucina, cuore pulsante della casa, è uno spazio di condivisione e creatività. Qui, il legno naturale riveste i mobili con la sua calda tonalità, offrendo un'elegante fusione di funzionalità e stile. Il tavolo da pranzo, al centro dell'ambiente, diventa il crocevia delle conversazioni e delle esperienze culinarie. Il disimpegno, con la sua luce diffusa e i dettagli raffinati, incarna l'essenza dell'armonia nordica. Le porte a rasomuro, sospese come opere d'arte, contribuiscono a creare un'atmosfera di leggerezza e trasparenza. Il pavimento, con le sue piastrelle di grande formato dall'effetto resina, invita a un viaggio sensoriale attraverso la continuità degli spazi. Nel bagno, i rivestimenti dai toni chiari trasmettono una sensazione di purezza e rigenerazione. Nella zona notte, la camera da letto si distingue per la sua eleganza senza tempo. La testata del letto, impreziosita da dettagli artigianali, diventa un simbolo di comfort e raffinatezza. Lo studio, con la sua chaise longue invitante, rappresenta un'oasi di tranquillità e ispirazione.
In definitiva, questo appartamento non è solo uno spazio abitativo, ma un'ode alla bellezza dell'essenziale. Ogni elemento, ogni dettaglio, è stato curato con amore e attenzione per creare un ambiente che incanta i sensi e nutre l'anima.
© 2020 FbR Architects all rights reserved